agence Immobilière MONTAIGNE GESTION
Retour aux annonces  
lien bien facebook | lien bien google plus | lien bien twitter | lien bien Linkdin

Bail commercial - 12 000/Mois CC   PARIS 05 (75005) - Référence 14

  • Bail commercial PARIS 05 (75005) MONTAIGNE GESTION
  • Bail commercial PARIS 05 (75005) MONTAIGNE GESTION
  • Bail commercial PARIS 05 (75005) MONTAIGNE GESTION
  • Bail commercial PARIS 05 (75005) MONTAIGNE GESTION
  • Current
  • Bail commercial PARIS 05 (75005) MONTAIGNE GESTION
  • Bail commercial PARIS 05 (75005) MONTAIGNE GESTION
  • Bail commercial PARIS 05 (75005) MONTAIGNE GESTION
  • Bail commercial PARIS 05 (75005) MONTAIGNE GESTION

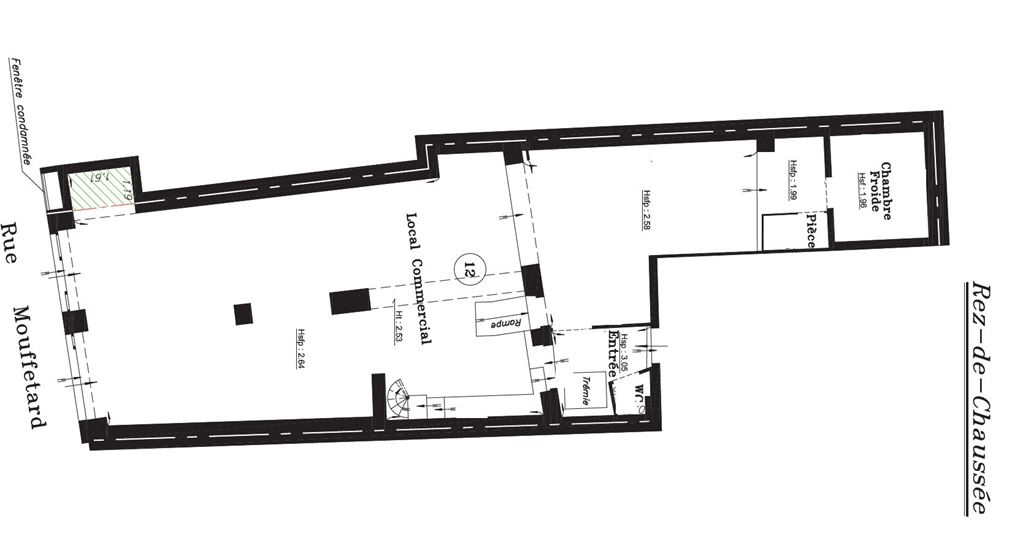
PLACE DE LA CONTRESCARPE

À louer – Boutique 100 m² + sous-sol 40 m² – 10 m de vitrine – Verrière – Sanitaires

Rare opportunité ! Belle boutique en rez-de-chaussée d’environ 100 m² complétée par un sous-sol de 40 m², idéal pour réserve, stockage ou espace complémentaire.

Le local bénéficie d’un linéaire vitrine d’environ 10 mètres, offrant une excellente visibilité et un fort potentiel d’enseigne. Le sous-sol est directement accessible depuis la boutique, à la fois par l’entrée du magasin et par le fond du magasin, pour un usage pratique au quotidien.

Vous apprécierez le cachet du lieu grâce à une verrière apportant luminosité et caractère, ainsi que la présence de sanitaires.

Atouts :

100 m² en RDC + 40 m² en sous-sol

10 m de vitrine

Sous-sol accessible depuis l’entrée et le fond du magasin

Sanitaires

Verrière : luminosité et cachet

Idéal tous commerces, ou activité tertiaire (selon destination).

Dossier et visite sur demande.

Informations

Référence : 14
Nb. de pièces : 1
surface_commerciale : 140 m²



- Charges : 526 € (Prévisionnelles Mensuelles)
- Dépôt de Garantie : 30000 €
- Honoraires Charge Locataire : 36000 € TTC
Dont 0 € TTC pour l'état des lieux
Local commercial PARIS 17 (75017) MONTAIGNE GESTION

Local commercial

5 400/Mois CC

PARIS 17 (75017)
Bail commercial PARIS 09 (75009) MONTAIGNE GESTION

Bail commercial

4 800/Mois CC

PARIS 09 (75009)